Appartement à vendre, Montréal (Rosemont/La Petite-Patrie)

575 000 $

5715, Rue Marquette, app. 107

Montréal (Rosemont/La Petite-Patrie)

chambre(s) 2 salle(s) de bain 1 salle(s) de bain 7
Photo Vincent Sarroino

Vincent Sarroino

Courtier immobilier résidentiel et commercial

514 831-2577

No Centris
#10914268
Type de propriété
Appartement
Style de bâtiment
Détaché (Isolé)
Année de construction
2010
Superficie du terrain
492.00 pi. ca.

Caractéristiques

Mode de chauffage
Plinthes électriques
Approvisionnement en eau
Municipalité
Énergie pour le chauffage
Électricité
Proximité
Hôpital , Parc-espace vert, Piste cyclable, École secondaire, Transport en commun
Salle de bains/salle d'eau
Douche indépendante
Système d'égouts
Municipal
Zonage
Résidentiel

Dimensions

Façade du bâtiment
1.00 pi.
Profondeur du bâtiment
1.00 pi.
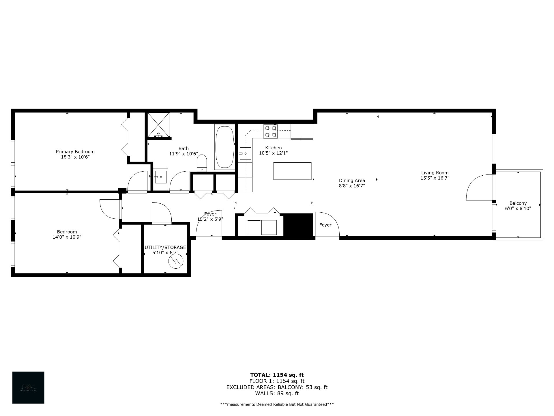
Superficie habitable
1 152.00 pi. ca.
Façade du terrain
1.00 pi.
Profondeur du terrain
1.00 pi.
Superficie du terrain
492.00 pi. ca.

Particularités des pièces

Pièces
7 pièces    |    2 chambre(s)    |    1 salle(s) de bain    |    0 salle(s) d'eau
Hall d'entrée
Rez-de-chaussée
5.9 x 15.2 pi.
Revêtement : Bois

2 entrées & garde -manger
Salle à manger
Rez-de-chaussée
8.8 x 16.7 pi.
Revêtement : Bois

concept ouvert & Balcon
Cuisine
Rez-de-chaussée
10.5 x 12.1 pi.
Revêtement : Bois

concept ouvert a/ïlot
Chambre à coucher principale
Rez-de-chaussée
10.6 x 18.3 pi.
Revêtement : Bois

placard & grande fenêtre
Chambre à coucher
Rez-de-chaussée
10.9 x 14.0 pi.
Revêtement : Bois

placard & grande fenêtre
Salle de bains
Rez-de-chaussée
10.6 x 11.9 pi.
Revêtement : Bois

bain et douche séparée
Rangement
Rez-de-chaussée
5.10 x 6.7 pi.
Revêtement : Bois

grand espace walk-in

Inclusions

Réfrigérateur, cuisinière/four, hotte, climatiseur mural, tous les luminaires de nature permanente, miroir dans la salle de bain.

Exclusions

Tous les biens du locataire, lave-vaisselle, laveuse et sécheuse.

Addenda

Emplacement exceptionnel, parcs et style de vie à votre porte !

Bienvenue dans ce condominium lumineux et spacieux de 1152 sq.ft, idéalement situé juste en face du parc Père-Marquette, dans le quartier très prisé de Rosemont La Petite Patrie. Profitez d'une lumière naturelle abondante, d'un agencement bien pensé et de finitions de haute qualité dans tout l'appartement.

**Points forts de la propriété**

* Surface habitable : environ 107 m²
* Vue imprenable sur le parc
* Plancher en bois partout
* Installation laveuse-sécheuse
* Grand espace de rangement dans l'unité
* Pompe à chaleur et échangeur d'air muraux pour le confort et la qualité de l'air
* Cuisine avec dosseret en céramique élégant, comptoirs en acier inoxydable et îlot central
* Espace de rangement dans le garage (environ 4 pi x 10 pi) et stationnement pour vélos
* Hydro et chauffage payés par locataires

**Emplacement privilégié**

* À 10 minutes à pied du métro Rosemont
* À 5 minutes à pied des boutiques et restaurants de la rue Laurier
* À distance de marche des écoles et des garderies
* À 10 minutes à pied du supermarché
* Excellent accès aux transports en commun

**Une vie incomparable au bord du parc** *(juste en face)*
Le parc Père-Marquette offre un parc pour chiens, un parc aquatique pour enfants, des terrains de volley-ball, de basket-ball, de hockey et de patinage, une piste de luge, des terrains de football et de baseball, des terrains de bocce, un skatepark et un jardin communautaire, ce qui en fait un lieu de vie idéal pour mener une vie active tout au long de l'année.

Une propriété à voir absolument, idéale pour y vivre ou comme investissement locatif convivial pour un premier investissement !

À propos de cette propriété

Emplacement 3AAA à Rosemont, Petite-Patrie! Bienvenue dans ce condo lumineux et spacieux de plus de 1150 pc, idéalement situé en face du parc Père-Marquette. Baigné de lumière naturelle grâce à ses grandes fenêtres, cet appartement comprend deux chambres avec placards doubles, une élégante salle de bain avec baignoire et douche séparée, ainsi qu'une cuisine contemporaine avec comptoir en acier inoxydable et îlot central. Le salon à aire ouverte s'étend sur un grand balcon donnant sur le parc, idéal pour se détendre ou recevoir. Parfait pour les professionnels ou les jeunes familles à la recherche de confort, style et quartier dynamique.

Demande d'information

Détails financiers

Annuel
Mensuel
Évaluation municipale (2025)
Bâtiment
391 400 $
Terrain
91 400 $
Taxes
(0)
2 025 $ 169 $
(0)
2 025 $ 169 $
Dépenses et énergie
0 $ 0 $

Calculateurs

  • Paiement mensuel
  • Taxe de mutation
  • Pouvoir d'achat

Montant des versements mensuels

 

**Le prix affiché n’inclut pas la prime d’assurance SCHL.

Taxe de mutation

 

** Uniquement à titre de référence, pour le montant exact, s'il vous plaît confirmer auprès de la ville ou la municipalité.

Pouvoir d'achat

 

**Le prix affiché n’inclut pas la prime d’assurance SCHL.

Vous aimez cette propriété?Partagez-la!

Nouvelles propriétés sur le marché qui pourraient vous intéresser

Vous cherchez la propriété de vos rêves? C’est par ici, et appelez-nous pour en savoir davantage ou planifier une visite !

WhatsApp
+

Vos préférences en matière de cookies

Nous utilisons des cookies pour optimiser notre site web et collecter des statistiques d'utilisation.

Politique en matière de cookies