Maison à étages à vendre, Saint-Zotique

549 000 $

238, Av. des Cageux

Saint-Zotique

chambre(s) 4 salle(s) de bain 1 salle(s) de bain 13
Photo Andrew Thomas

Andrew Thomas

Courtier immobilier résidentiel et commercial

514 894-9525

Photo JD Panesar

JD Panesar

Courtier immobilier résidentiel

514 449-7004

No Centris
#10201891
Type de propriété
Maison à étages
Style de bâtiment
Détaché (Isolé)
Année de construction
2013
Superficie du terrain
652.94 pi. ca.
Date d’emménagement
30 jours

Caractéristiques

Allée
Asphalte
Mode de chauffage
Plinthes électriques
Approvisionnement en eau
Municipalité
Énergie pour le chauffage
Électricité
Équipement disponible
Climatiseur mural , Échangeur d'air, Porte de garage électrique
Fondation
Béton coulé
Garage
Chauffé , Intégré
Appareils en location
Chauffe-eau (1)
Proximité
Garderie/CPE , Golf, Piste cyclable, École primaire
Sous-sol
6 pieds et plus
Stationnement
Au garage (1)
Système d'égouts
Municipal
Toiture
Bardeaux d'asphalte
Zonage
Résidentiel

Dimensions

Façade du bâtiment
21.00 pi.
Profondeur du bâtiment
32.50 pi.
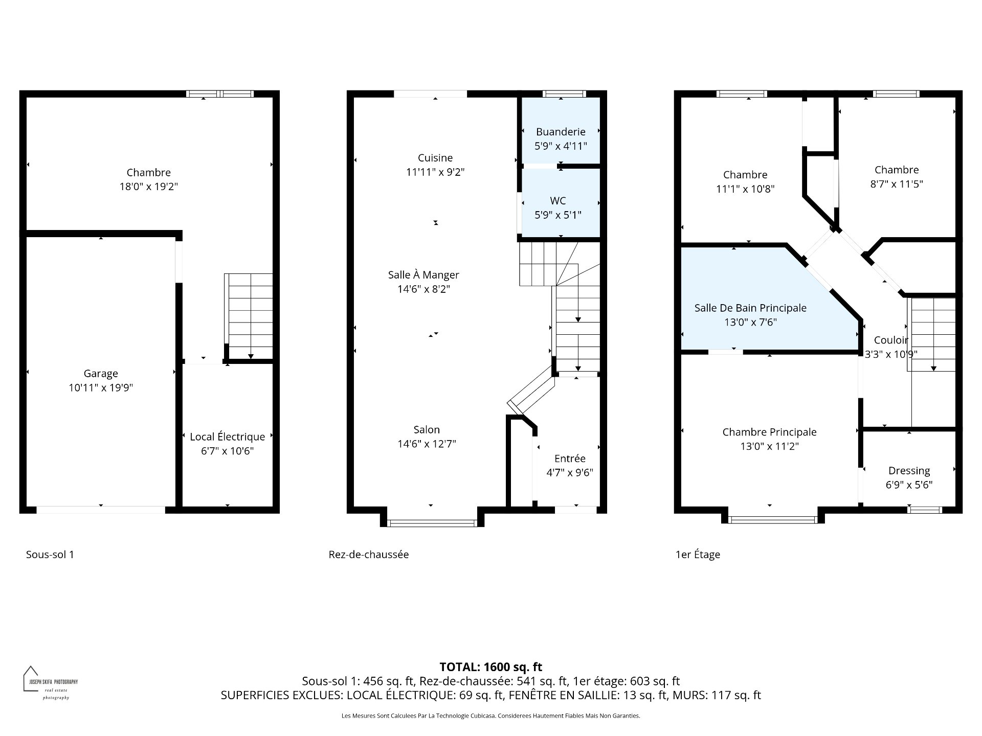
Superficie habitable
Façade du terrain
22.00 m
Profondeur du terrain
125.30 m
Superficie du terrain
652.94 pi. ca.

Particularités des pièces

Pièces
13 pièces    |    4 chambre(s)    |    1 salle(s) de bain    |    1 salle(s) d'eau
Chambre à coucher
Sous-sol
18.0 x 19.2 pi.
Rangement
Sous-sol
6.7 x 10.6 pi.
Cuisine
Rez-de-chaussée
11.11 x 9.2 pi.
Salle à manger
Rez-de-chaussée
14.6 x 8.2 pi. - irrégulier
Salon
Rez-de-chaussée
14.6 x 12.7 pi.
Hall d'entrée
Rez-de-chaussée
4.7 x 9.6 pi. - irrégulier
Salle de lavage
Rez-de-chaussée
5.9 x 4.11 pi.
Salle d'eau
Rez-de-chaussée
5.9 x 5.1 pi.
Chambre à coucher
2ième étage
11.0 x 10.8 pi. - irrégulier
Chambre à coucher
2ième étage
8.7 x 11.5 pi. - irrégulier
Chambre à coucher principale
2ième étage
13.0 x 11.2 pi.
Salle de bains
2ième étage
13.0 x 7.6 pi. - irrégulier
Penderie (Walk-in)
2ième étage
6.9 x 5.6 pi.

À propos de cette propriété

Impeccable! Maison en rangée sur 2 étages avec jolie cour clôturée. Propriété lumineuse comprenant 3 CAC, 1 SDB, 1 salle d'eau et garage intégré. Petit sous-sol aménagé en salle familiale ou cinéma maison (possibilité d'y faire une 4e chambre). Secteur familial récent, près des commodités. Il ne reste qu'à y installer vos meubles!

Demande d'information

Détails financiers

Annuel
Mensuel
Évaluation municipale (2025)
Bâtiment
256 200 $
Terrain
86 300 $
Taxes
(0)
2 025 $ 169 $
(0)
2 025 $ 169 $

Calculateurs

  • Paiement mensuel
  • Taxe de mutation
  • Pouvoir d'achat

Montant des versements mensuels

 

**Le prix affiché n’inclut pas la prime d’assurance SCHL.

Taxe de mutation

 

** Uniquement à titre de référence, pour le montant exact, s'il vous plaît confirmer auprès de la ville ou la municipalité.

Pouvoir d'achat

 

**Le prix affiché n’inclut pas la prime d’assurance SCHL.

Vous aimez cette propriété?Partagez-la!

WhatsApp
+

Vos préférences en matière de cookies

Nous utilisons des cookies pour optimiser notre site web et collecter des statistiques d'utilisation.

Politique en matière de cookies