Triplex à vendre, Montréal (Côte-des-Neiges/Notre-Dame-de-Grâce)

1 299 000 $

5238-5240, Av. Trans Island

Montréal (Côte-des-Neiges/Notre-Dame-de-Grâce)

chambre(s) 3 salle(s) de bain 1 salle(s) de bain 6
Photo Vincent Sarroino

Vincent Sarroino

Courtier immobilier résidentiel et commercial

514 831-2577

No Centris
#19211907
Type de propriété
Triplex
Style de bâtiment
Jumelé
Année de construction
1930
Superficie du terrain
2 560.00 pi. ca.
Date d’emménagement
60 jours

Caractéristiques

Mode de chauffage
Plinthes électriques
Approvisionnement en eau
Municipalité
Énergie pour le chauffage
Électricité
Fenêtres
Aluminium
Fondation
Bloc de béton
Garage
Chauffé , Double largeur ou plus
Revêtements
Béton , Brique
Proximité
Autoroute/Voie rapide , Cegep, Garderie/CPE, Golf, Hôpital, Parc-espace vert, Piste cyclable, École primaire, École secondaire, Transport en commun, Université
Sous-sol
Totalement aménagé , Entrée indépendante
Stationnement
Extérieur (2) , Au garage (2)
Système d'égouts
Municipal
Toiture
Autre , Membrane élastomère
Topographie
Plat
Zonage
Résidentiel

Dimensions

Façade du bâtiment
1.00 pi.
Profondeur du bâtiment
1.00 pi.
Superficie habitable
Façade du terrain
32.00 pi.
Profondeur du terrain
80.00 pi.
Superficie du terrain
2 560.00 pi. ca.

Particularités des pièces

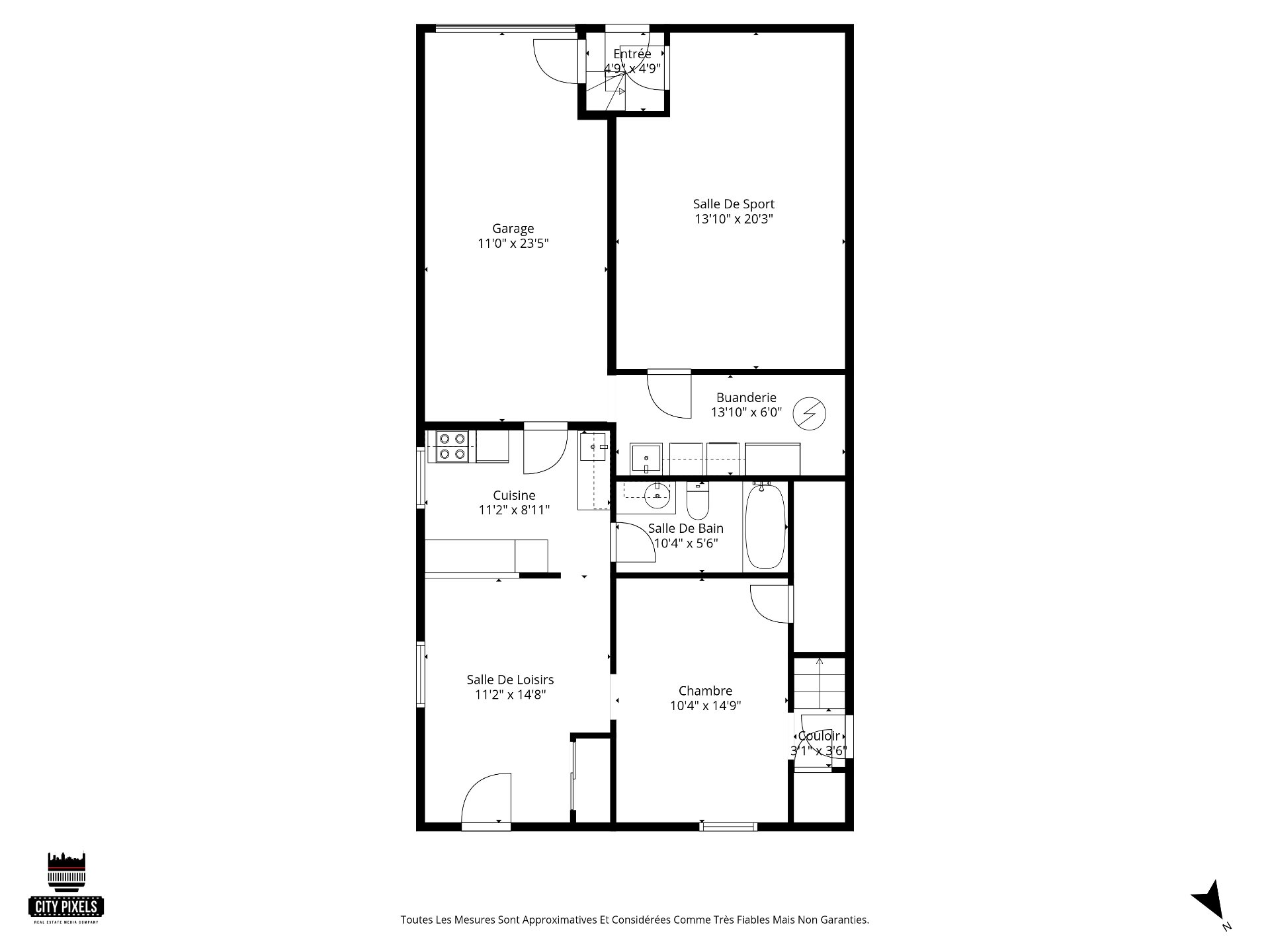
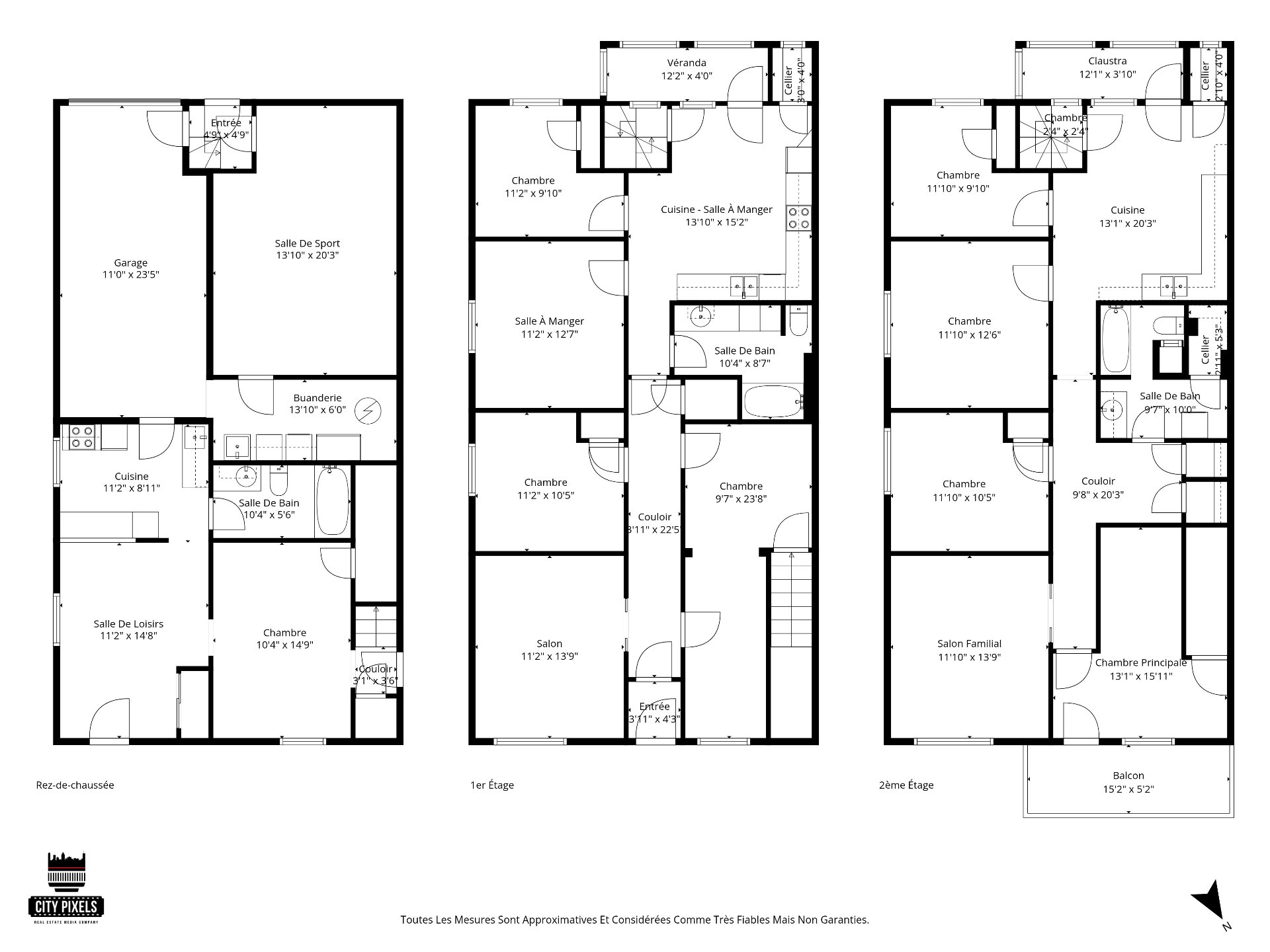
Pièces
6 pièces    |    3 chambre(s)    |    1 salle(s) de bain    |    0 salle(s) d'eau
Unité 1 - Logement
Autre
Rez-de-chaussée
8.11 x 22.5 pi.
Revêtement : Bois
Salon
Rez-de-chaussée
11.2 x 13.9 pi.
Revêtement : Bois
Chambre à coucher principale
Rez-de-chaussée
10.5 x 11.2 pi.
Revêtement : Bois
Chambre à coucher
Rez-de-chaussée
9.7 x 23.8 pi.
Revêtement : Bois

cac et bureau
Salle à manger
Rez-de-chaussée
11.2 x 12.7 pi.
Revêtement : Bois

option 4e cac
Chambre à coucher
Rez-de-chaussée
9.10 x 11.2 pi.
Revêtement : Bois
Salle de bains
Rez-de-chaussée
8.7 x 10.4 pi.
Revêtement : Céramique
Cuisine
Rez-de-chaussée
13.10 x 15.2 pi.
Revêtement : Bois

Dinette
Véranda
Rez-de-chaussée
12.2 x 4.0 pi.
Revêtement : Bois
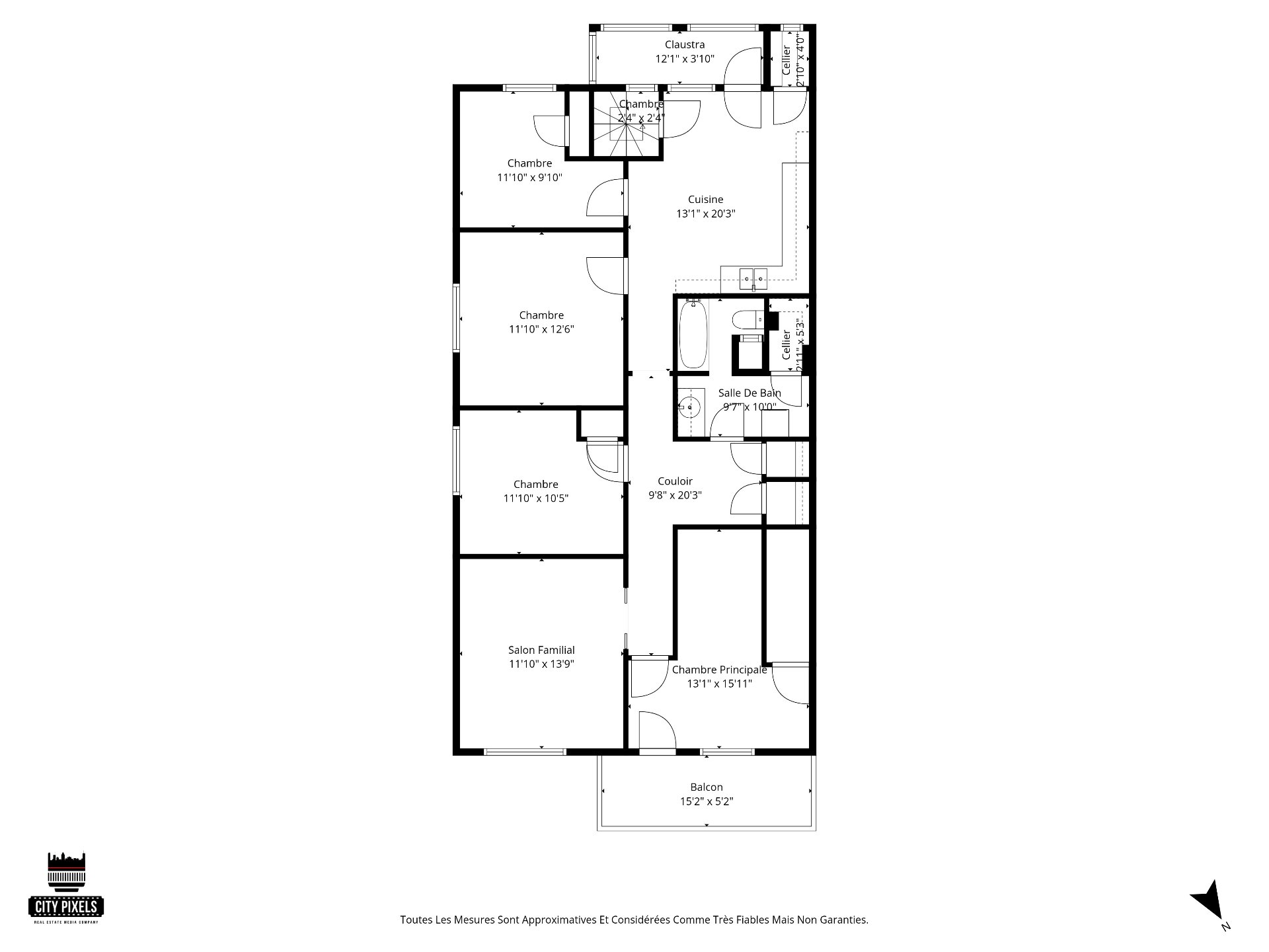
Unité 2 - Logement
Autre
2ième étage
5.2 x 15.2 pi.
Revêtement : Bois
Salon
2ième étage
11.10 x 13.9 pi.
Revêtement : Bois
Chambre à coucher principale
2ième étage
13.1 x 15.11 pi.
Revêtement : Bois
Chambre à coucher
2ième étage
10.5 x 11.10 pi.
Revêtement : Bois
Salle à manger
2ième étage
11.10 x 12.6 pi.
Revêtement : Bois

ou CAC
Salle de bains
2ième étage
9.7 x 10.0 pi.
Revêtement : Céramique
Autre
2ième étage
9.8 x 20.3 pi.
Revêtement : Bois
Chambre à coucher
2ième étage
9.10 x 11.10 pi.
Revêtement : Bois
Cuisine
2ième étage
13.1 x 20.3 pi.
Revêtement : Bois
Unité 3 - Logement
Cuisine
Sous-sol
8.11 x 11.2 pi.
Revêtement : Bois
Chambre à coucher
Sous-sol
10.4 x 14.9 pi.
Revêtement : Tapis
Salle de bains
Sous-sol
5.6 x 10.4 pi.
Revêtement : Céramique
Salle de jeux
Sous-sol
11.2 x 14.8 pi.
Revêtement : Béton
Autre
Sous-sol
13.10 x 23.3 pi.
Revêtement : Béton

Garage 2e espace

Inclusions

Tous les luminaires, ventilateurs de plafond, stores, laveuse et sécheuse dans le duplex supérieur, réfrigérateur et cuisinière dans les duplex supérieur et inférieur et le studio.

Exclusions

Laveuse et sécheuse au sous-sol, souffleuse à neige, ensemble de salle à manger, petite table et chaises de cuisine dans le duplex inférieur, tous les meubles au sous-sol.

Addenda

Une occasion à ne pas manquer pour ce triplex (appartement à l'étage, appartement au rez-de-chaussée et studio avec entrée indépendante). Emplacement central, à proximité des commerces, restaurants, transports en commun, écoles (dont l'Université de Montréal), deux grands hôpitaux et l'Oratoire Saint-Joseph. À deux pas des autoroutes 15 (Décarie) et 20, et à distance de marche du métro Snowdon.

Mises à jour et rénovations de la propriété :

1. Toiture neuve -- 2018 (coût total : 17 423,00 $)

- Membrane TPO blanche Energi Star

- Quatre (4) couches de matériau de couverture

- Réparation du parapet

- Matériaux et main-d'oeuvre garantis 10 ans par Carlisle Synthetics

- Facture et documents de garantie disponibles auprès du fournisseur.

2. 2018 : 2 nouvelles portes d'entrée (coût total : 5 081,96 $)

- Portes en acier et aluminium noir avec vitrail.

- Novatech Chanelle

3. 2018 : Nouveau carrelage dans la salle de bain à l'étage

- Peinture complète du duplex supérieur

- Refaite du ciment sur le balcon avant en 2022

4. 2025/26 : Ponçage et vernissage de toutes les pièces des unités principales (rez-de-chaussée et étage). - Escalier d'entrée principal menant à l'unité supérieure 5240.

- Escalier extérieur et balcon : réparation de fissures mineures et application d'un scellant gris (1 200 $).

- Peinture des duplex (rez-de-chaussée et étage).

- Calfeutrage des salles de bain des unités supérieure et inférieure.

- Remplacement sur mesure par Mason des appuis de fenêtre en béton des unités supérieure et principale (3 219,30 $).

- Réparation et remplacement sur mesure des portes et tiroirs des armoires de cuisine du duplex supérieur (uniquement les armoires au-dessus du comptoir) (200,00 $).

- Réparation et peinture du puits de lumière à tous les niveaux.

- Réinstallation des solins autour des fenêtres des unités supérieure et inférieure.

- Nettoyage en profondeur de toutes les fenêtres des unités supérieure et inférieure.

- Réparation et scellement des solins de l'étage supérieur : fenêtre du salon, petite fenêtre de la chambre, fenêtre de la salle à manger de l'unité inférieure.

- Ajout d'une baignoire de style Bain Magique dans la salle de bain de l'étage.

- Le vendeur déclare avoir fait réaliser une inspection prévente en mars 2026 par Proinspexx. Le rapport est disponible et téléchargé dans l'annonce pour consultation obligatoire par tous les acheteurs. Les courtiers ont pris connaissance du descriptif détaillé et du rapport d'inspection avant de demander une visite du bien.

Par conséquent, le vendeur a fixé le prix en conséquence afin de permettre aux acheteurs d'effectuer les réparations indiquées dans le rapport et de s'approprier le bien.

Le bien est vendu sans garantie légale. Toutefois, les déclarations détaillées et le rapport d'inspection font partie intégrante des déclarations du vendeur, conformément au statut du bien.

À propos de cette propriété

Une occasion à ne pas manquer pour ce triplex (appartement à l'étage, appartement au rez-de-chaussée et studio avec entrée indépendante). Emplacement central, à proximité des commerces, restaurants, transports en commun, écoles (dont l'Université de Montréal), deux grands hôpitaux et l'Oratoire Saint-Joseph. À deux pas des autoroutes 15 (Décarie) et 20, et à distance de marche du métro Snowdon.

Vente avec exclusion(s) de garantie légale - Voir courtier(s) inscripteur(s).
Demande d'information

Détails financiers

Annuel
Mensuel
Évaluation municipale (2024)
Bâtiment
635 300 $
Terrain
309 100 $
Taxes
(0)
2 026 $ 169 $
(0)
2 026 $ 169 $
Dépenses et énergie
0 $ 0 $
Revenus potentiels bruts
Résidentiels
99 600 $ 8 300 $

Calculateurs

  • Paiement mensuel
  • Taxe de mutation
  • Pouvoir d'achat

Montant des versements mensuels

 

**Le prix affiché n’inclut pas la prime d’assurance SCHL.

Taxe de mutation

 

** Uniquement à titre de référence, pour le montant exact, s'il vous plaît confirmer auprès de la ville ou la municipalité.

Pouvoir d'achat

 

**Le prix affiché n’inclut pas la prime d’assurance SCHL.

Vous aimez cette propriété?Partagez-la!

Nouvelles propriétés sur le marché qui pourraient vous intéresser

Vous cherchez la propriété de vos rêves? C’est par ici, et appelez-nous pour en savoir davantage ou planifier une visite !

WhatsApp
+

Vos préférences en matière de cookies

Nous utilisons des cookies pour optimiser notre site web et collecter des statistiques d'utilisation.

Politique en matière de cookies