Two or more storey for sale, Mascouche

$ 674,900

2043, Rue de Brompton

Mascouche

bedroom(s) 3 bathroom(s) 1 bathroom(s) 10
Photo Julio Borsellino

Julio Borsellino

Residential and Commercial Real Estate Broker

514 991-4732

Centris #
#16868134
Property type
Two or more storey
Building style
Detached
Construction year
1981
Land area
4,013.40 m²
Move-in date
45 days

Characteristics

Heating system
Air circulation , Electric baseboard units
Water supply
Municipality
Heating energy
Electricity
Windows
Wood
Foundation
Poured concrete
Siding
Brick , Stone
Pool
Above-ground
Basement
6 feet and over , Finished basement
Parking
Outdoor (4)
Sewage system
Sealed septic tank
Roofing
Asphalt shingles
Zoning
Residential

Dimensions

Front of the building
11.27 m
Depth of the building
9.94 m
Living area
Front of the land
53.35 m
Depth of the land
66.66 m
Land area
4,013.40 m²

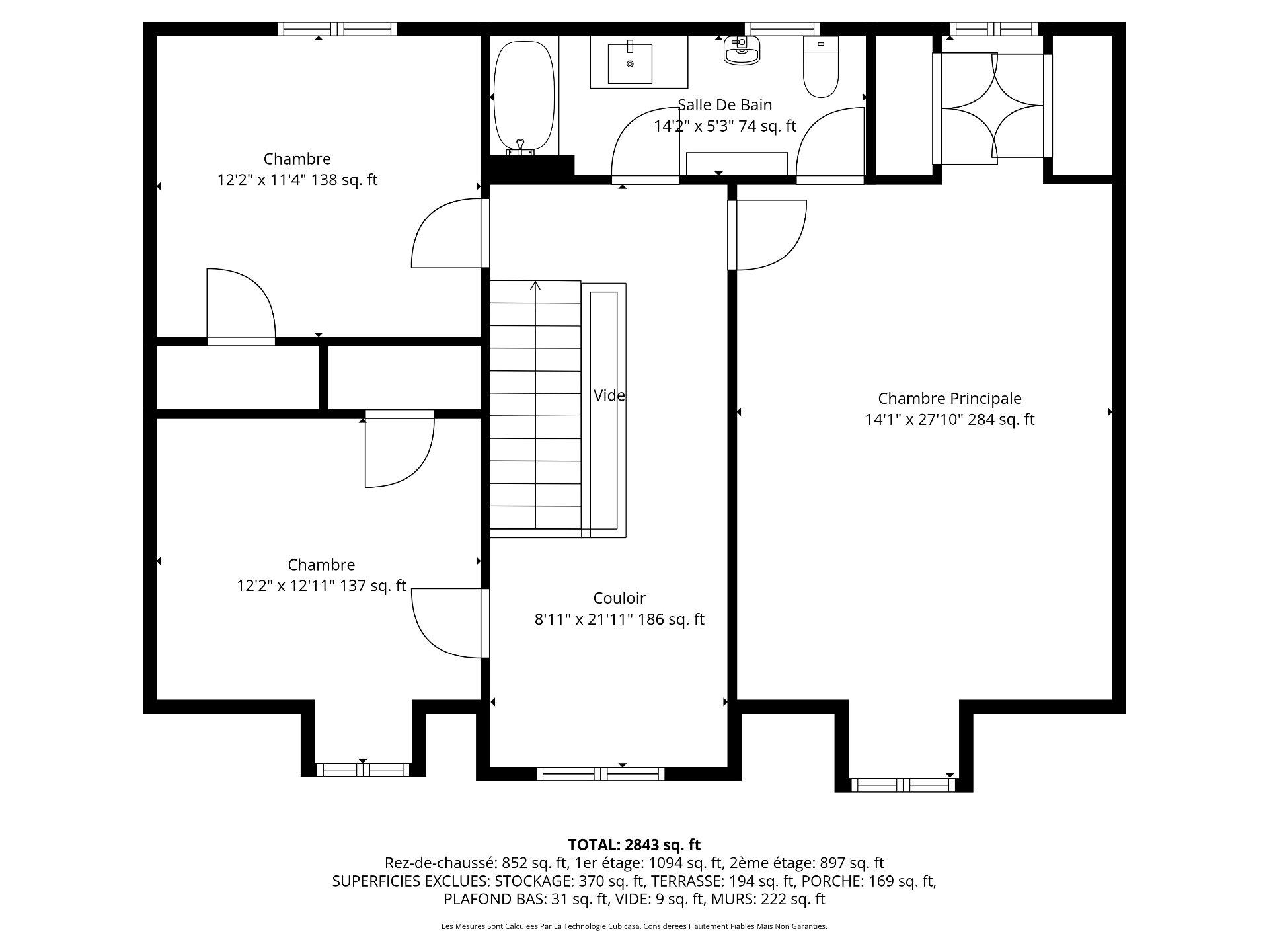
Room Dimensions

Rooms
10 rooms    |    3 bedroom(s)    |    1 bathroom(s)    |    1 washroom(s)
Hallway
Ground floor
7.8 x 4.5 ft.
Living room
Ground floor
12.2 x 14.7 ft.
Dining room
Ground floor
23.5 x 31.6 ft.
Kitchen
Ground floor
12.2 x 16.6 ft.
Other
Ground floor
3.11 x 4.1 ft.
Washroom
Ground floor
9.4 x 5.10 ft.
Primary bedroom
2nd floor
14.1 x 27.10 ft.
Bedroom
2nd floor
12.2 x 12.11 ft.
Bedroom
2nd floor
12.2 x 11.4 ft.
Bathroom
2nd floor
14.2 x 5.3 ft.
Family room
Basement
34.4 x 25.10 ft.

Addenda

An exceptional opportunity to own a charming and spacious family home at 2043 Rue de Brompton in the sought-after town of Mascouche. Nestled directly above the old greens of the Golf Club Mascouche with breathtaking panoramic views, this 3-bedroom, 1-bathroom plus powder-room residence offers both comfort and style in a serene, open-concept layout--perfect for anyone seeking a blend of cozy charm and an expansive natural setting.

**Property features**

* 3 good-sized bedrooms on the upper level sharing a full bathroom;
* Main floor with beautiful wood accents and a dining area ideal for hosting;
* Powder room on the main floor that also accommodates the washer and dryer;
* Finished basement with a flexible living space and plenty of storage;
* Vast lot of over 43,000 sq ft with no rear neighbours, backing directly onto the old golf course;
* Large, private backyard featuring an above-ground pool and panoramic views;
* Open-concept main floor offering warmth, comfort and excellent flow;
* Mature trees, generous outdoor space and a peaceful setting.

**Area**
Mascouche offers a calm suburban environment with excellent access to services.

* Nearby amenities: multiple grocery stores, shops, restaurants and cafés are within a short drive, including Metro, IGA, Walmart and various local boutiques;
* Served by the Centre de services scolaire des Affluents; Anglophone options include Pinewood Elementary;
* Mascouche features several neighbourhood parks and green spaces, with plenty of nature nearby, thanks to the old golf course and surrounding greenery;
* Quick access to Autoroute 25 and Autoroute 640, as well as the Mascouche commuter train station on the Exo network for convenient transportation.

**Why buy this property?**

* Rare private setting with no rear neighbours and direct to an old golf-course;
* Spacious lot of over 43,000 sq ft -- far larger than typical suburban properties;
* Finished basement and warm wood accents;
* Ideal layout for families, with all three bedrooms grouped together on the same upper level;
* Exceptional outdoor living: pool, panoramic views and space to entertain or relax;
* Perfect balance of tranquility and convenience, close to shops, schools and major roadways;
* A unique lifestyle opportunity for those who value nature, privacy and charm in a sought-after neighbourhood;

About this property

Charming 3-bed home backing onto Golf Club Mascouche on a vast 43,000+ sq ft lot with no rear neighbours. Enjoy panoramic views, an above-ground pool, and a warm open-concept layout with wood accents. Three bedrooms upstairs, a main-floor powder room with laundry, and a finished basement with flexible space. Peaceful setting close to groceries, parks, schools, highways and the Mascouche train.

Sale with exclusion(s) of legal warranty - See listing broker(s).
Information request

Financial details

Annual
Monthly
Municipal evaluation (2025)
Building
$ 443,600
Land
$ 199,100
Taxes
(0)
$ 2,025 $ 169
(0)
$ 2,025 $ 169

Calculators

  • Monthly payment
  • Transfer tax
  • Purchasing power

Monthly instalments

 

**Price does not include CMHC insurance premium.

Transfer tax

 

** For reference only, for the exact amount, please confirm with the city or municipality.

Purchasing power

 

**Price does not include CMHC insurance premium.

You like this property?Share it!

New properties on the market that might interest you

Looking for the property of your dreams? It's right here, and call us to find out more or schedule a visit!

WhatsApp
+

Your cookie preferences

We use cookies to optimize our website and collect usage statistics.

Cookie policy